实际工程之中,现浇楼板开洞后,需要运用粘贴碳布、粘钢等加固方法,当面对这些问题时,该注意什么呢?今天,就让我们共同来探讨一下。

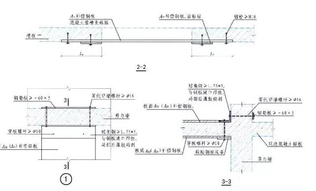
粘钢加固

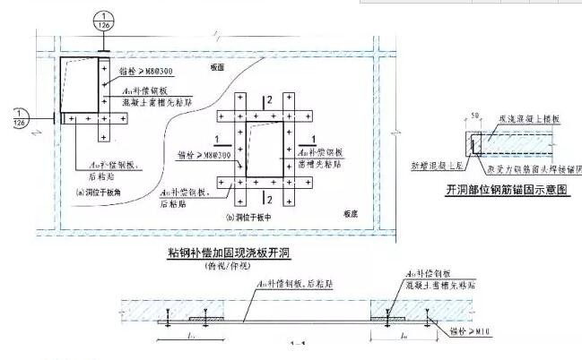
粘接碳布加固 现浇连续板开洞,当开洞位置位于板的负弯矩区时,采用粘接碳布加固时,也应进行双面加固,纵横纤维布粘贴先后顺序可不受限制。
两者共性 无论是承担负弯矩的板面钢板还是碳布,都会因墙体阻挡,无法贯通,此时可采用螺杆及短角钢穿墙拉结锚固传递拉力。对于框架结构现浇楼板角区开洞,承担负弯矩的板面钢板或碳布,都应弯折锚固与边梁外侧,并满足锚固长度要求。
在对现浇楼板开洞改造时,开洞楼板的刚度与强度较不开洞时会有不同程度的削弱,一般来说,刚度的削弱更为明显,在洞口短边或转角处会出现较大的应力集中,板面筋的减少,导致承载力降低,因此应对开洞后的楼板进行内力分析和承载力验算之后,再结合楼板性质(梁式楼盖、无梁楼盖、简支板、连续板、单向板、双向板)、开涧部位(边缘、中部)、开洞大小及形状等差异,分别采用合适的加固处理方法。